Ho avanzato gonfiabile statico, largo 3,9 m
Con Dual-Pitch Sistema di tetto TM e un componente doppio-avanzato, Club AIR Pro è immediatamente riconosciuto.
La pratica configurazione del pannello frontale offre due porte anteriori o, se preferisci, aprire la cerniera e rimuovere i pannelli facilmente per aprire l'avanzata in stile portico.
L'innovativa versatilità del Club AIR Pro 390 S consente di adattarsi a tutti i tipi di veicoli per il tempo libero.
Grazie al suo sistema brevettato Multi-Height, l'avanzamento statico gonfiabile può essere utilizzato sia con roulotte e camper che hanno una guida regolabile fissando a varie altezze. Aprire semplicemente i pannelli laterali rinforzati del avanti, tenere il avanti verso il basso per raggiungere la migliore vestibilità e chiusura dopo le cerniere interne per nascondere qualsiasi materiale in eccesso.
Sistema di altezza variabile multi-altezza
Tecnologia avanzata regolabile in altezza che garantisce la compatibilità per vari tipi di veicoli.
Punto singolo di gonfiamento
Le tende con un solo punto gonfiato sono gonfiate da un solo punto di inflazione esterna
Area di ventilazione
La ventilazione migliora il comfort aumentando la circolazione dell'aria e riducendo la condensazione.
Profondità extra
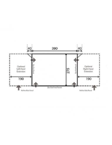
La generosa profondità di 2,75 m crea un ampio spazio interno sotto l'avanzata
Tempo libero Pro
Tessuto in poliestere a doppio strato Weathershield TM Pro
Impianto
Dimensioni generose che massimizzano lo spazio vitale
La tecnologia gonfiata a singolo punto Air Frame garantisce una struttura solida e un facile montaggio Il materiale resistente e leggero WeathershieldTM Pro è stato testato in diversi ambienti
Il tetto Dual-Pitch aumenta lo spazio per la testa, assicura una deviazione efficace del vento e versa l'acqua piovana in modo efficiente.
Il sistema Multi-Height regolabile in altezza garantisce un adattamento accurato del veicolo
La sua configurazione flessibile consente di aprire l'avanzata in stile portico.
Misure:
- Profondità: 2750 mm.
- Altezza: 2650 mm.
- Larghezza: 3900 mm.
- Altezza di collegamento min 2350,00 cm.
- Altezza massima del collegamento 2650,00 cm.
Peso: 28,70 kg.
SK 9120001117 A
Pagos 100% seguros con:
